
VILLA JAIRUS B-04
Esclusiva villa bifamiliare in due livelli in un lotto di 700 MQ.

Al piano terra un'ampia zona living open-space che comunica con lo spazioso giardino esterno tramite la vetrata, completano il piano un bagno giorno e un disimpegno, inoltre un garage con accesso diretto alla residenza. Si accede alla zona notte del piano superiore attraverso una scala con gradini rivestiti in legno.
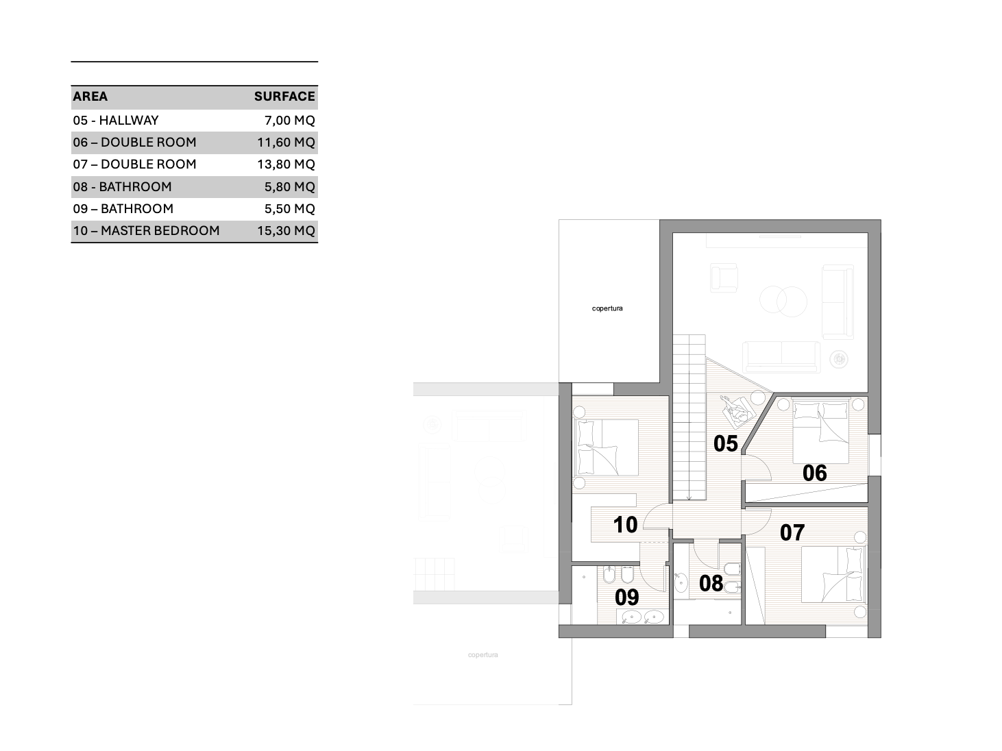
Nella zona notte un ampio disimpegno con ballatoio dove creare un'area relax esclusiva al piano primo che si affaccia nel cuore della villa, la zona living del piano terra, tre camere matrimoniali di cui una con cabina armadio e bagno privato, un ulteriore bagno per le altre due camere.




